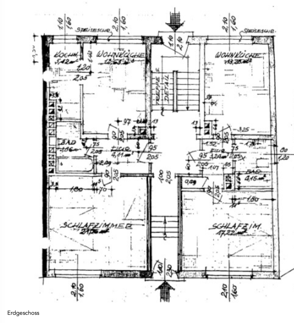
Sie sind Kapitalanleger und suchen eine spannende Investitionsmöglichkeit in Gelsenkirchen? Dann ist dieses voll vermietete Mehrfamilienhaus mit solidem Ertragswert genau das Richtige für Sie. Es handelt sich bei diesem Angebot um ein klassisches Renditeobjekt, das im Jahr 1954 in massiver Bauweise errichtet wurde. Die Immobilie bietet Ihnen auf einer Gesamtwohnfläche von ca. 499 m² insgesamt 9 Wohneinheiten, die eine breite und damit risikostreuende Mieterstruktur gewährleisten. Das Grundstück umfasst eine Größe von ca. 422 m². Ein wesentlicher Vorteil in dieser städtischen Lage sind die 4 zum Hof gehörenden Garagen, welche die Vermietbarkeit der Wohnungen zusätzlich sichern. Die Immobilie befindet sich in einem dem Baujahr entsprechenden, soliden Zustand. Wesentliche Teile, wie Heizungen und Bäder wurden nach 2000 erneuert. Die Beheizung der Einheiten erfolgt über Gas-Etagenheizungen; dies vereinfacht die Verwaltung, da die Mieter ihre Heizkosten direkt mit dem Versorger abrechnen. Mit einer Jahreskaltmiete (Soll) von 45.192 € erwirtschaftet das Objekt bereits jetzt einen attraktiven Cashflow. Die Jahreskaltmiete (IST) liegt derzeit bei 29.520 €. Der Energiebedarf liegt laut Ausweis bei 188 kWh/(m²*a) (Klasse F), was Ihnen als Investor klare Anhaltspunkte für zukünftiges Entwicklungspotential bietet.
Sie möchten mehr über diese Immobilie erfahren oder einen gemeinsamen Besichtigungstermin
vereinbaren? Dann sprechen Sie uns gerne an!
Alles auf einen Blick.
Objektdetails
Träumen Sie schon von Ihrem neuen Zuhause? Auf einen Blick sehen Sie alle Informationen, die Sie brauchen – von Lage über Ausstattung bis hin zu besonderen Highlights. So wissen Sie sofort, ob es Ihr perfektes Zuhause ist. Jedes Detail wurde für Sie übersichtlich zusammengestellt, damit Sie sich ganz auf Ihre Entscheidung konzentrieren können. Lassen Sie sich inspirieren und stellen Sie sich vor, wie Ihr Alltag in diesem besonderen Zuhause aussehen könnte. Willkommen in einem Ort, an dem Wohnträume Wirklichkeit werden.
Detailansicht
Renoviertes 9-Familienhaus mit Garagen in ruhiger Nebenstraße
Objektbeschreibung
Ausstattung
Ausstattungsbeschreibung
💰 Renditechance: Aktuelle Ist-Miete 29.520 € p.a. mit Steigerungspotenzial auf 45.192 € p.a. (Soll)
🏘️ Einheiten: 9 Wohneinheiten auf ca. 499 m² Gesamtwohnfläche
🏗️ Bauweise: Solide Massivbauweise (Baujahr 1954)
🚗 Parken: 4 hofeigene Garagen – ein wertvoller Bonus in städtischer Lage
🛠️ Zustand: Solide Substanz; Bäder und Heizungen nach 2000 modernisiert
🧱 Grundstück: Ca. 422 m² in zentraler Lage
🔧 Verwaltungsarm: Effiziente Gas-Etagenheizungen (Direktabrechnung durch Mieter)
📈 Potenzial: Attraktiver Cashflow und Entwicklungsmöglichkeiten (Energieklasse F)
🛡️ Sicherheit: Voll vermietet mit risikostreuender Mieterstruktur
Bildergalerie



















Typangaben
Standort & Verwaltungsinformationen
Lage
Die Immobilie befindet sich in stadtnaher Lage des Gelsenkirchener Stadtteils Bulmke-Hüllen. Die Umgebung ist durch eine gewachsene Wohnbebauung geprägt, was für eine angenehme Atmosphäre sorgt und zugleich ein stabiles Mieterumfeld garantiert. Gelsenkirchen liegt zentral im Herzen des Ruhrgebiets, wodurch die Stadt von der exzellenten Vernetzung der Region profitiert: Von der wirtschaftlichen Stärke des Reviers ebenso wie von dem breiten kulturellen Angebot der Metropole Ruhr. Durch die Nähe zu den Nachbarstädten Essen, Bochum, Herne und Wattenscheid sowie die schnelle Erreichbarkeit der Autobahnen A42 und A40 ist der Standort hervorragend angebunden. Auch die Anbindung an den öffentlichen Nahverkehr ist sehr gut – diverse Bus- und Bahnlinien verbinden den Standort zügig mit dem Hauptbahnhof sowie dem gesamten Ruhrgebiet. Im direkten Umfeld der Immobilie befinden sich zahlreiche Einkaufsmöglichkeiten, Gastronomiebetriebe, Banken und Arztpraxen. Die Gelsenkirchener Innenstadt mit ihrer Einkaufsstraße und dem Musiktheater ist schnell erreichbar und bietet eine attraktive Ergänzung zum Versorgungsangebot. Schulen, Kindergärten und Freizeiteinrichtungen sind ebenfalls in kurzer Distanz vorhanden. Darüber hinaus überzeugt der Standort durch seinen hohen Freizeitwert: Der fußläufige „Bulmker Park“, die bekannte „ZOOM Erlebniswelt“ sowie der Revierpark Nienhausen bieten vielfältige Möglichkeiten zur Erholung und Freizeitgestaltung. Insgesamt bietet der Standort Margaretenstraße 31 eine attraktive Kombination aus zentraler Wohnlage, guter Infrastruktur und urbaner Lebensqualität – ideal für Kapitalanleger wie auch für Eigennutzer mit Vermietungsabsichten.
Flächenangaben
Preisangaben
Energieausweis
Kontaktdaten
45894 Gelsenkirchen
FAQ zum Kauf einer Immobilie
Wie läuft der Kauf einer Immobilie mit Spengler Immobilien ab?
Nach einem persönlichen Beratungsgespräch oder Ihrer Online-Auswahl präsentieren wir Ihnen passende Immobilien, organisieren Besichtigungen und begleiten Sie durch den gesamten Kaufprozess – von der Preisverhandlung über die Finanzierung bis hin zum Notartermin.
Welche Kaufnebenkosten fallen beim Immobilienkauf an?
Zusätzlich zum Kaufpreis entstehen in der Regel Kosten für Grunderwerbsteuer, Notar- und Grundbuchgebühren sowie gegebenenfalls die Maklerprovision. Wir klären Sie transparent über alle anfallenden Kosten auf.
Benötige ich bereits eine Finanzierungszusage für eine Besichtigung?
Eine Finanzierungszusage ist nicht zwingend erforderlich, jedoch von Vorteil. Sie signalisiert Seriosität und beschleunigt den Kaufprozess, insbesondere bei stark nachgefragten Immobilien.
Kauft Spengler Immobilien ausschließlich Immobilien in Gelsenkirchen?
Der Schwerpunkt unserer Tätigkeit liegt in Gelsenkirchen und dem Ruhrgebiet. Darüber hinaus vermitteln wir jedoch auch Immobilien außerhalb der Region und greifen dabei auf ein starkes Netzwerk zurück.
Begleitet Spengler Immobilien mich bis zum Notartermin?
Ja, selbstverständlich. Wir begleiten Sie nicht nur bis zum Notartermin, sondern stehen Ihnen auch darüber hinaus beratend zur Seite – transparent, persönlich und zuverlässig.
Ist der Immobilienkauf auch für Kapitalanleger geeignet?
Ja. Wir beraten sowohl Eigennutzer als auch Kapitalanleger und unterstützen Sie bei der Auswahl einer Immobilie, die zu Ihren finanziellen Zielen und Ihrer individuellen Situation passt.
Gut vorbereitet zum Immobilienkauf
Damit der Kauf Ihrer Immobilie reibungslos, transparent und zügig ablaufen kann, ist eine gute Vorbereitung entscheidend. Die folgenden Unterlagen und Punkte helfen dabei, den gesamten Prozess effizient zu gestalten und Verzögerungen zu vermeiden:
- Gültiger Personalausweis oder Reisepass
- Nachweis über die Finanzierung
- Angaben zur gewünschten Immobilie
- Informationen zu Ihrer persönlichen Situation
- Steuerliche Identifikationsnummer
- Bankverbindung für Kaufnebenkosten
- Gegebenenfalls Vollmacht
Mit diesen Vorbereitungen schaffen Sie die optimale Grundlage für einen sicheren und erfolgreichen Immobilienkauf. Spengler Immobilien begleitet Sie dabei selbstverständlich Schritt für Schritt und steht Ihnen jederzeit beratend zur Seite.